|
For more information visit Pop-Up Drop-Off
Louisville Ballet and the Louisville Free Public Library are excited to announce the return of Nutcracker Family Storytimes, November 18 through December 5, at select LFPL locations. The annual event has become a holiday tradition for families across Louisville.
These free, family-friendly events feature two Louisville Ballet dancers, in costume, reading the classic story of The Nutcracker, along with music, dancing, crafts, and more! Plus, one lucky family at each event walks away with four tickets to see Louisville Ballet’s production of The Brown-Forman Nutcracker.
Join us for one of these Nutcracker Family Storytimes:
- Monday, November 18, 6:30 p.m. – Shawnee Library
- Tuesday, November 19, 6:30 p.m. – South Central Regional
- Wednesday, November 20, 6:30 p.m. – Main Library
- Thursday, November 21, 6:30 p.m. – Iroquois Library
- Monday, November 25, 6:30 p.m. – Southwest Regional
- Wednesday, December 4, 6:30 p.m. – Northeast Regional
- Thursday, December 5, 6:30 p.m. – St. Matthews Library
For more information, visit LFPL.org/Nutcracker, or call the Main Library Children’s Department at (502) 574-1620.
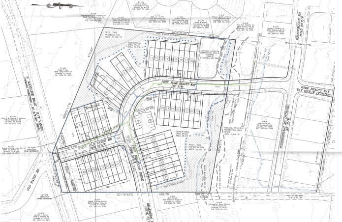
You are invited to attend a review for a Change in Zoning from R-4 Single Family Residential to PRD Planned Residential Development, with associated Detailed Development Plan and Binding Elements and Major Preliminary Subdivision.
Subject Property: 7203 East Manslick Rd Case Number: 24-ZONE-0079
Case Manager: Dante St. Germain (dante.st.germain@louisvilleky.gov)
The Planning Commission Meeting will be held: Thursday, November 21, 2024 at 1:00pm
In-Person option: 514 West Liberty Street
Options for Joining the Virtual Meeting: https://louisvilleky.gov/government/planning-design/upcoming-public-meetings
View Plan as PDF View Staff Report
You are invited to attend a review for a Change in Zoning from R-4 Single Family Residential to C-1 Commercial with associated Detailed District Development Plan and Biding Elements.
Subject Property: 6703 and 6705 Rocky Ln; 6707 Beulah Church Rd. Case Number: 24-ZONE-0081
Case Manager: Amy Brooks (Amy.Brooks@louisvilleky.gov)
The Land Development & Transportation Committee Meeting will be held: Thursday, November 21, 2024 at 1:00pm
In-Person option: 514 West Liberty Street
Options for Joining the Virtual Meeting: https://louisvilleky.gov/government/planning-design/upcoming-public-meetings
View Plan as PDF View Rendering as PDF View Staff Report
The Louisville Metro Council has teamed up with the Association of Community Ministries to host a Holiday Food Drive collecting essential foods for those most in need this season. All donations will be provided to the Association of Community Ministries to be divided evenly amongst the 13 Area Community Ministries.
Donations Accepted Through December 5
You may drop food donations at: Main Donation Site: City Hall, 601 W. Jefferson St.
Local Donation Site: South Central Regional Library, 7300 Jefferson Blvd.
Additional Drop Off Locations: 2024 Holiday Food Donation Drive
The most urgently needed items at this time are canned proteins, such as beef stew, canned chicken/tuna, hearty soups, tomato sauce, canned fruit, jelly and cereal. ACM will also accept household items including shampoo, soap, deodorant, toothpaste, toilet paper, menstruation products, etc.
Can’t get to a donation box, but still want to contribute? Please consider making a general monetary donation online: www.louisvilleministries.org/
A Classic Retelling: "A Christmas Carol" , Adapted by Kathy Preher Reynolds
Get ready to embark on a heartwarming journey of redemption and transformation as Highview Arts Center proudly presents its second show of the season, "A Christmas Carol," adapted by Kathy Preher Reynolds. This timeless tale of compassion and self-discovery will come to life on stage this December, captivating audiences of all ages with its enchanting storytelling and innovative adaptation.
Kathy Preher Reynolds, a local theatre professional who currently resides within the Highview Community, has masterfully breathed new life into Charles Dickens' classic story. With a unique blend of traditional charm and contemporary resonance, Reynolds' adaptation promises to deliver a fresh perspective on the beloved characters and themes that have made "A Christmas Carol" a holiday favorite for generations.
The production will feature an exceptional cast of local community actors, each meticulously chosen to capture the essence of Dickens' characters and Reynolds' reimagined vision. From the curmudgeonly Ebenezer Scrooge to the endearing Tiny Tim, audiences can expect a performance that will tug at their heartstrings and inspire a renewed appreciation for the true spirit of Christmas
EACH PERFORMANCE SOLD OUT LAST YEAR Advanced Tickets On Sale Now!
DATES December 6, 7, 12, 13, 14, 19, 20, 21 at 7:30pm December 8, 15, 22 at 2:30pm
TICKETS $15 General Admission / $13 students and seniors. Purchase Advanced Tickets
**due to popularity, ordering tickets in advance is strongly advised. Walk-in ticket sales are not guaranteed.
The Highview Arts Center is located at 7406 Fegenbush Lane.
Visit them online at: highviewartscenter.com facebook.com/highviewarts
Holiday Cheer Program: We need families, groups, or organizations who are willing to adopt a family and/or donate food baskets. Learn More - Holiday Cheer Flyer
Performers Needed for Christmas Benefit Concert: Learn More - Concert Flyer
Hiring Bilingual Social Services Worker and Bookkeeper: Learn More - Job Descriptions
Metro Public Works free leaf drop-off sites will be open Tuesday-Saturdays through December 7. |
|
 |
This is a free service for residents only. Drop-off sites will not be open Nov. 28-29 in observance of Thanksgiving. Only leaves will be accepted. They can be loose, in paper or compostable bags or in reusable containers. Containers must be taken back by residents.
Locations and hours:
- Public Works Yard, 10500 Lower River Road (enter from Bethany Lane), Tuesday-Saturday, 9 a.m.-3 p.m.
- Public Works East District Operations Center, 595 N Hubbards Lane, Tuesday-Saturday, 9 a.m.-3 p.m.
- Shawnee Park, 230 Southwestern Parkway (Athletic Complex), Tuesday-Saturday, 9 a.m.-3 p.m.
- Waste Reduction Center, 636 Meriwether Avenue, Tuesday-Friday, 9 a.m.-5 p.m. and Saturday, 9 a.m.-3 p.m.
 |
|
Councilman Hudson wants to meet you and hear what you want to see from Metro Government. Stop by with any questions, concerns or comments. |
Next Meeting Date:
Monday, December 9
5:00pm-6:00pm (Drop In) 6:00p-7:00pm (By Appointment)
Central Government Center, 7201 Outer Loop
District Office Hours are the 2nd Monday of each month at the Central Government Center.
Call 574-1123 or email Jeff.Hudson@louisvilleky.gov for more information.
There are approximately 100 boards and commissions with many areas of interest, including business and economic development, land planning, parks and recreation, public health and public safety. |
|
 |
If you are interested in volunteering for one of Louisville Metro Government's Boards and Commissions, now is the time to start. By being a part of a board or commission, you will offer your time and your talents to improve the quality of life in our community.
To learn more please visit Boards and Commission.
 |
|
Always Remember to Lock Your Car and Remove All Valuables, it's the Easiest Way to Prevent Crime
|
Click Here to view LMPD's interactive crime mapping tool.
If you see crime occurring, please contact the Louisville Metro Police Department. Call 911 for emergencies. Call 502-574-7111 for non-emergency related assistance.
Call 574-LMPD to report crime tips |