 |
The Fern Creek Fire Department broke ground this week on expanding Station 73 located at 10200 Cedar Creek Rd. The dormitory expansion will allow FCFD to operate this station as a fully staffed firehouse, enhancing their ability to serve and protect our community. Construction is expected to be completed summer of 2025.
Learn More:
WHAS - Fern Creek Fire is redeveloping, staffing second location in southeast Louisville
WLKY - Fern Creek Fire and EMS expanding services in southeast Jefferson County
For more information visit Pop-Up Drop-Off
AUDITIONS Monday Oct 21 at 6:00pm - 7:30pm
LOCATION Highview Arts Center 7406 Fegenbush Lane
Adapted by Kathy Preher Reynolds, this timeless classic takes the audience on a journey of intertwining what is real, and what is make believe. Designed for all families!
Come prepared for a 1 minute, or a story or a joke, and read sides (scenes from script) and have some fun!
Seeking men and women, all abilities, all everything! All genders welcome! Actors will perform multiple roles!
More Info and Signup
You are invited to attend a review for a Change in Zoning from R-4 to Single Family to R-6 Multifamily and PRD Planned Residential Development with a Detailed District Development Plan/major Preliminary Subdivision Plan with Binding Elements, variance(s) and waiver(s).
Subject Property: 8300 Cooper Chapel Rd Case Number: 23-ZONE-0120
Case Manager: Jay Luckett (Jay.Luckett@louisvilleky.gov)
The Planning Commission Meeting will be held: Tuesday, October 22, 2024 6:00pm Central Government Center, 7201 Outer Loop
View Plan as PDF View Staff Report
You are invited to attend a review for a Change in Zoning from R-4 Single Family Residential to PRD Planned Residential Development, with associated Detailed Development Plan and Binding Elements and Major Preliminary Subdivision.
Subject Property: 7203 East Manslick Rd Case Number: 24-ZONE-0079
Case Manager: Dante St. Germain (dante.st.germain@louisvilleky.gov)
The Land Development & Transportation Committee Meeting will be held: Thursday, October 24, 2024 at 1:00pm
In-Person option: 514 West Liberty Street
Options for Joining the Virtual Meeting: https://louisvilleky.gov/government/planning-design/upcoming-public-meetings
View Plan as PDF View Staff Report
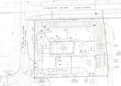
You are invited to attend a review for a Change in Zoning from R-4 Single Family Residential to C-1 Commercial with associated Detailed District Development Plan and Biding Elements.
Subject Property: 6703 and 6705 Rocky Ln; 6707 Beulah Church Rd. Case Number: 24-ZONE-0081
Case Manager: Amy Brooks (Amy.Brooks@louisvilleky.gov)
The Land Development & Transportation Committee Meeting will be held: Thursday, October 24, 2024 at 1:00pm
In-Person option: 514 West Liberty Street
Options for Joining the Virtual Meeting: https://louisvilleky.gov/government/planning-design/upcoming-public-meetings
View Plan as PDF View Staff Report
Administrative Assistant Social Services Worker Bookkeeper
Learn more about each position and how to apply. (Word doc)
McNeely Lake Park Cleanup Saturday, November 2, 2024 Cleanup: 9:00am-noon Music and Lunch for Volunteers: 10:00am-1:00pm
Supplies for the cleaning will be provided. Be sure to dress appropriately. For planning purposes please RSVP by calling 574-1123 or emailing jeff.hudson@louisvilleky.gov.
CADILLAC BAR & GRILL LLC, 7105 FEGENBUSH LANE LOUISVILLE, KY 40228, Hereby declares intention(s) to apply for a NQ-MALT BEVERAGE PACKAGE license(s) no later than October 3, 2024. The business to be licensed will be located at 7105 FEGENBUSH LANE LOUISVILLE, Kentucky 40228 doing business as A TO Z FOOD MART. The Members are as follows: CHANDRA DIYALI.
There are two agencies which approve alcoholic beverage licenses, State ABC and Metro ABC. Anyone interested in commenting on the granting of the license may do so by writing the two agencies. In this case letters must be received by November 7, 2024. The addresses are:
Department of Alcoholic Beverage Control 500 Mero Street 2 NE 33 Frankfort, KY 40601 Comments can be emailed to: abc.info@ky.gov
and
ABC Administrator Brad Silveria Louisville Metro Codes & Regulations 444. S. 5th Street, Suite 200 Louisville, KY 40202
HIGHFOODS llc, 1420 Gardener Lane Ste 34601 Louisville KY 40232, Hereby declares intention(s) to apply for a Nq2 retail drink license restaurant and Special Sunday retail drink license restaurant license(s) no later than September 23, 2024. The business to be licensed will be located at 7407 Fegenbush Lane Ste B/A Louisville Kentucky , Kentucky 40228 doing business as HIGHFOODS LLC. The owner(s) are as follows: Owner Brian Morris 1420 Gardiner lane Suite 34601 Louisville KY 40232.
There are two agencies which approve alcoholic beverage licenses, State ABC and Metro ABC. Anyone interested in commenting on the granting of the license(s) may do so by writing the two agencies. In this case letters must be received by October 22, 2024. The addresses are:
Department of Alcoholic Beverage Control 500 Mero Street 2 NE 33 Frankfort, KY 40601 Comments can be emailed to: abc.info@ky.gov
and
ABC Administrator Brad Silveria Louisville Metro Codes & Regulations 444. S. 5th Street, Suite 200 Louisville, KY 40202
 |
|
Councilman Hudson wants to meet you and hear what you want to see from Metro Government. Stop by with any questions, concerns or comments. |
Next Meeting Date:
Monday, November 11
5:00pm-6:00pm (Drop In) 6:00p-7:00pm (By Appointment)
Central Government Center, 7201 Outer Loop
District Office Hours are the 2nd Monday of each month at the Central Government Center.
Call 574-1123 or email Jeff.Hudson@louisvilleky.gov for more information.
There are approximately 100 boards and commissions with many areas of interest, including business and economic development, land planning, parks and recreation, public health and public safety. |
|
 |
If you are interested in volunteering for one of Louisville Metro Government's Boards and Commissions, now is the time to start. By being a part of a board or commission, you will offer your time and your talents to improve the quality of life in our community.
To learn more please visit Boards and Commission.
 |
|
Always Remember to Lock Your Car and Remove All Valuables, it's the Easiest Way to Prevent Crime
|
Click Here to view LMPD's interactive crime mapping tool.
If you see crime occurring, please contact the Louisville Metro Police Department. Call 911 for emergencies. Call 502-574-7111 for non-emergency related assistance.
Call 574-LMPD to report crime tips |