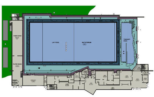
 Pullen Aquatic Center Renovation
The Pullen Aquatic Center Renovation project will include new roofing, skylight replacement, building envelope and structural repair, replacement of natatorium lighting, diving board replacement, replacement of HVAC units, pool gutter system replacement and the addition of a natatorium dehumidification system. The renovation will close Pullen Aquatic Center from June 9 through Dec. 9.
Dog Park Study
The 2018 Dog Park Study is a comprehensive approach to address the need for dog parks throughout the City of Raleigh. Based on citizen feedback, spatial data analysis, and a review of nationwide trends in dog park planning, we will develop a strategy to create safe and engaging park spaces for people with and without dogs. This study will include analysis of the geographic distribution of dog parks throughout the city, opportunities & access in urban as well as suburban areas, & potential tools to encourage publicly accessible dog runs as part of new development.
John Chavis Memorial Park Phase 1 Construction
John Chavis Memorial Park Phase 1 construction will begin in July. The pool facilities will be demolished as part of the project. The completed project will provide a wonderful and unique water play element in the central plaza. In the meantime, we encourage people to use the City of Raleigh webpage and keyword search ‘Raleigh Aquatics’ to learn more about other pool and water play facilities available in the city.
Buffaloe Road Dog Park
The new 1.5-acre dog park at Buffaloe Road Athletic Park features separate areas for both large and small dogs. The fenced-in off-leash area also offers multiple entry gates, dog waste stations, drinking water pad, and shade for you and your pets.
Mount Hope Cemetery Office Renovation
The Mt. Hope Cemetery Office Renovation project has begun construction. The small office building is located off Prospect Avenue on the south side of the cemetery. The building will be expanded by 800 square feet, adding three offices, two new restrooms, a refurbished work room, and a reception area for cemetery guests. Construction is expected to be completed by November 2018.
Neighborhood Center Facility Upgrades
Proposed improvements to Neighborhood Centers at Eastgate Park, Apollo Heights Park and Powell Drive Park will include upgrades to the HVAC, networking and security systems, renovations to the restrooms including ADA improvements, sewer line cleaning, alterations to the interior layout and enhanced front entry & reception areas. Additional improvements may also include new lighting, acoustics, and ceiling in the meeting room. Improvements will be limited to the building interior. All three
neighborhood center projects are funded by the 2014 Parks Bond. The budget for upgrades at the three centers
is $1.6 million.
New Comfort Stations
Three new comfort stations are currently under construction at Buffaloe Road Athletic Park, Jaycee Park and Roberts Park. The comfort station at Jaycee Park has been designed to provide concessions and a picnic shelter as part of the structure.
|