|
It's not too late to register!
If your church, school, club, group or business would like to have a booth or participate please fill out and submit the 2024 Highview Fall Festival Participation Form
 |
|
Councilman Hudson wants to meet you and hear what you want to see from Metro Government. Stop by with any questions, concerns or comments. |
Next Meeting Date:
Monday, October 14
5:00pm-6:00pm (Drop In) 6:00p-7:00pm (By Appointment)
Central Government Center, 7201 Outer Loop
District Office Hours are the 2nd Monday of each month at the Central Government Center.
Call 574-1123 or email Jeff.Hudson@louisvilleky.gov for more information.
You are invited to attend a review for a Change in Zoning from R-4 to Single Family to R-6 Multifamily and PRD Planned Residential Development with a Detailed District Development Plan/major Preliminary Subdivision Plan with Binding Elements, variance(s) and waiver(s).
Subject Property: 8300 Cooper Chapel Rd Case Number: 23-ZONE-0120
Case Manager: Jay Luckett (Jay.Luckett@louisvilleky.gov)
The Planning Commission Meeting will be held: Tuesday, October 22, 2024 6:00pm Central Government Center, 7201 Outer Loop
View Plan as PDF
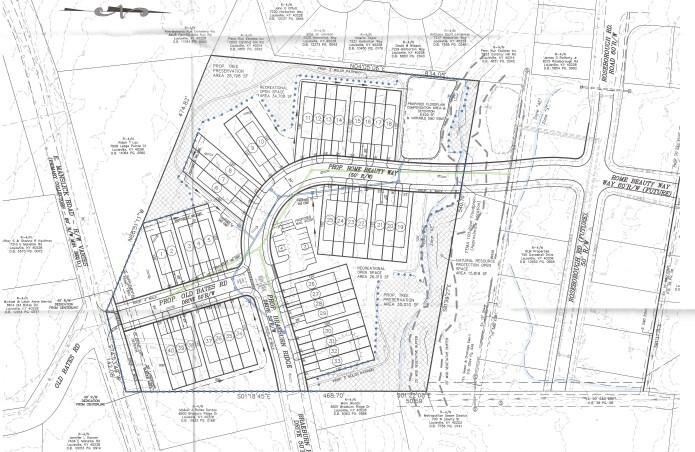
You are invited to attend a review for a Change in Zoning from R-4 Single Family Residential to PRD Planned Residential Development, with associated Detailed Development Plan and Binding Elements and Major Preliminary Subdivision.
Subject Property: 7203 East Manslick Rd Case Number: 24-ZONE-0079
Case Manager: Dante St. Germain (dante.st.germain@louisvilleky.gov)
The Land Development & Transportation Committee Meeting will be held: Thursday, October 24, 2024 at 1:00pm
In-Person option: 514 West Liberty Street
Options for Joining the Virtual Meeting: https://louisvilleky.gov/government/planning-design/upcoming-public-meetings
View Plan as PDF
Building on two years of research and community conversations, the Office of Planning is proposing an amendment to the Louisville Metro Land Development code (LDC) that will allow Middle Housing to be built in all residential areas in Louisville Metro. The proposed changes include six different Middle Housing types: duplex, triplex, fourplex, townhouses, walking courts, and cottage courts.
Middle Housing will be included in LDC Chapter 4, Part 3: Permitted with Special Standards. This means that the Middle Housing types listed above will be permitted in all zoning districts where residential use is allowed, provided that the standards for building size, height, setbacks, and other design criteria are met.
Public Comments Accepted
To learn more about the proposed amendment, Middle Housing and to submit comments visit: www.louisvilleky.gov/middlehousing.
Feedback can also be emailed to LDCreform@louisvilleky.gov or called into 574-5860 or 574-8272.
In conjunction with the ongoing Land Development Code (LDC) Reform process, the Office of Planning was tasked to study the existing development patterns in Louisville Metro and identify areas where new housing opportunities can be unlocked.
The study analyzed existing conditions like land use, zoning, lot sizes, and infrastructure to identify areas that can support more housing, shown on the Analysis Map. After the Analysis Map was presented for public review in February 2024, the planning team worked to refine the map and develop a series of implementation strategies to help realize the identified potential for new housing. Drafts of the final materials for the study are now available for review and comment on the Office of Planning website, including a Story Map, the Analysis Map, and the draft Implementation Strategies Report.
Public Comment Period
The Office of Planning intends to adopt the Housing & Mixed Use Development Study and the Analysis Map as an amendment to Plan 2040, the comprehensive plan, after integrating public comment and feedback on the draft materials. The comment period will be open until at least November 1, 2024, with the option to extend if necessary.
You can access all of the Housing & Mixed Use Development Study draft materials, including the comment form, on the Office of Planning website: https://louisvilleky.gov/government/office-planning/housing-mixed-use-development-study
Visit the website or Facebook page to learn more about the License to Vote art contest for students in K-12.
For more information visit Pop-Up Drop-Off
McNeely Lake Park Cleanup Saturday, November 2, 2024 Cleanup: 9:00am-noon Music and Lunch for Volunteers: 10:00am-1:00pm
Supplies for the cleaning will be provided. Be sure to dress appropriately. For planning purposes please RSVP by calling 574-1123 or emailing jeff.hudson@louisvilleky.gov.
CADILLAC BAR & GRILL LLC, 7105 FEGENBUSH LANE LOUISVILLE, KY 40228, Hereby declares intention(s) to apply for a NQ-MALT BEVERAGE PACKAGE license(s) no later than October 3, 2024. The business to be licensed will be located at 7105 FEGENBUSH LANE LOUISVILLE, Kentucky 40228 doing business as A TO Z FOOD MART. The Members are as follows: CHANDRA DIYALI.
There are two agencies which approve alcoholic beverage licenses, State ABC and Metro ABC. Anyone interested in commenting on the granting of the license may do so by writing the two agencies. In this case letters must be received by November 7, 2024. The addresses are:
Department of Alcoholic Beverage Control 500 Mero Street 2 NE 33 Frankfort, KY 40601 Comments can be emailed to: abc.info@ky.gov
and
ABC Administrator Brad Silveria Louisville Metro Codes & Regulations 444. S. 5th Street, Suite 200 Louisville, KY 40202
HIGHFOODS llc, 1420 Gardener Lane Ste 34601 Louisville KY 40232, Hereby declares intention(s) to apply for a Nq2 retail drink license restaurant and Special Sunday retail drink license restaurant license(s) no later than September 23, 2024. The business to be licensed will be located at 7407 Fegenbush Lane Ste B/A Louisville Kentucky , Kentucky 40228 doing business as HIGHFOODS LLC. The owner(s) are as follows: Owner Brian Morris 1420 Gardiner lane Suite 34601 Louisville KY 40232.
There are two agencies which approve alcoholic beverage licenses, State ABC and Metro ABC. Anyone interested in commenting on the granting of the license(s) may do so by writing the two agencies. In this case letters must be received by October 22, 2024. The addresses are:
Department of Alcoholic Beverage Control 500 Mero Street 2 NE 33 Frankfort, KY 40601 Comments can be emailed to: abc.info@ky.gov
and
ABC Administrator Brad Silveria Louisville Metro Codes & Regulations 444. S. 5th Street, Suite 200 Louisville, KY 40202
There are approximately 100 boards and commissions with many areas of interest, including business and economic development, land planning, parks and recreation, public health and public safety. |
|
 |
If you are interested in volunteering for one of Louisville Metro Government's Boards and Commissions, now is the time to start. By being a part of a board or commission, you will offer your time and your talents to improve the quality of life in our community.
To learn more please visit Boards and Commission.
 |
|
Always Remember to Lock Your Car and Remove All Valuables, it's the Easiest Way to Prevent Crime
|
Click Here to view LMPD's interactive crime mapping tool.
If you see crime occurring, please contact the Louisville Metro Police Department. Call 911 for emergencies. Call 502-574-7111 for non-emergency related assistance.
Call 574-LMPD to report crime tips |