Wednesday, May 10, 2023 | View in browser
Emerson & Jackson Demolition Project Update
Please see below for project updates and schedule.
Start Date: May 17, 2023
Project Schedule: May 17, 2023 - July 31, 2023, detailed below
Demolition Contractor: Wreckcon - John Gipson
Demolition Point of Contact: Paul Zalmezak, City of Evanston - 224.725.3613 (call or text)
Demolition Addresses: 1917-1925 Jackson Avenue and 1413-1425 Emerson Street.
Impacted Residents: Community members in the area bound by Foster, Wesley, Emerson, and Ashland.
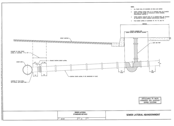
 Summary The first stage of the project will include sewer disconnections for the vacant properties located at 1913 Jackson - 1425 Emerson. Wreckcon will make cuts into the pavement and excavate to access the sewer at the main.
Expected Traffic Impacts: Street closure on Jackson Avenue from 7 a.m. to 3 p.m. beginning May 17 to May 24, 2023. Residents on the west side of Jackson will have access to their garages using the alley north of Emerson.
Alternative Temporary Parking: VW Parking Lot accessed at gate located at 1601 Foster
Expected Noise Impacts: Pavement cutting saw, truck engine noise, and machine noise
The Evanston City Code (7-13-7. - BUILDING SEWERS AND CONNECTIONS) requires this type of disconnection to limit deterioration and infiltration that can cause sinkholes, backups to the city sewer, and lower capacity during heavy storms. Once the disconnections are complete, the holes will be refilled and repaved. The excavations will be covered with steel plates to allow the streets to be driveable after 3 p.m.
Map of Demolition Project Area

-
Red - daily street closure from 7 a.m. to 3 p.m. during May 17 to May 24, 2023.
-
Yellow - VW Parking Lot (gated lot next to Gilbert Park) access at Foster
-
Orange- residential demolition sites.
-
Blue - impacted residents use this alley to enter/exit garage
Typical Sewer Service
  For additional information and updates, please visit the City's website at cityofevanston.org/business/jackson-and-emerson-affordable-housing.
Bobby Burns Councilmember, 5th Ward 224-714-2184 www.cityofevanston.org
|