601 W. Jefferson Street Louisville, KY 40202 502.574.1111 Contact Kevin Kramer
 Scott Harrington
Legislative Assistant Phone: 502-574-3456 Contact Scott Harrington
Track Crime in the City
|
Dear Neighbor:
We are writing to invite you to a follow-up meeting to the one held on May 6th to again present neighbors with our zone change plan to allow a retail center to be located as above.
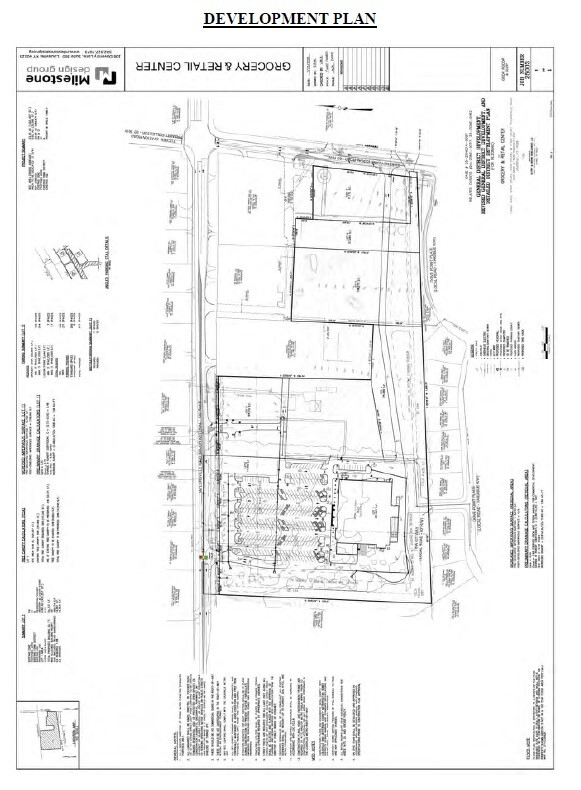
Since our last neighborhood meeting, a traffic study has been completed and agency comments have been received. This second meeting is to again show the development plan and to discuss the traffic study. This meeting is also being held as a result of insufficient room for all attendees at the last meeting. A plan was filed for pre-application review with The Office of Planning that was assigned case number 25-ZONEPA-0057 and case manager Mark Pinto. There will be access to the site via Taylorsville Road and Sweeney Lane.
In that regard, a meeting will be held on Wednesday, July 30, 2025, beginning at 6:00 p.m. at the Jeffersonian in the Watterson Room located at 10617 Taylorsville Road, Louisville, KY 40299. Enclosed for your review are the following: 1.The development plan sheet 2.LOJIC site location zoning map sheet showing the location of the site 3.Detailed summary sheet of the project 4.Contact information sheet and Information on how to obtain case information online from Office of Planning online customer service portal 5.Office of Planning’ “After the Neighborhood Meeting” sheet
If you are unable to attend the meeting, or have any questions or comments, please feel free to email or call me at the number listed above.
We look forward to our opportunity to visit with you.
Sincerely,
Nicholas R. Pregliasco
|