Neighborhood Informational Meeting for CUP, Javanon Soccer Club, 12411 Rehl Road

Banner
Councilman Kevin Kramer

Metro Councilman Kevin Kramer

601 W. Jefferson Street
Louisville, KY 40202
502.574.1111
Contact Kevin Kramer
 

Become a Fan

  
Scott Harrington

 

Legislative Assistant
Phone: 502-574-3456
Contact Scott Harrington


Track Crime in the City

In this issue:


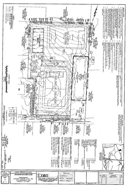
Neighborhood meeting for a Modified Conditional Use Permit to allow additional outdoor training space at the Javanon Soccer Club facility, located at 12603 & 12411 Rehl Road

Dear Neighbor,

We are writing to notify you about an upcoming neighborhood meeting regarding the above referenced project.  Javanon Soccer Club proposes to add a 1.34 -acre portion of the adjacent property located at 12603 Rehl Roadto their existing Conditional Use Permit. The additional area will be used as an outdoor practice area and no new construction is associated with this request.  We invite you to attend our neighborhood meeting to learn about the specifics of the proposal and the Louisville Metro review process, which will include a yet to be scheduled meeting of the Louisville Metro Board of Zoning Adjustments. Enclosed for your review is a copy of the plan that will be presented at the neighborhood meeting.

Meeting Details:

Date:     May 21, 2024

Time:      6:00 p.m.

Location: Javanon Soccer Club, 12411 Rehl Road

If you are unable to attend the meeting or have questions or comments, please contact Mike Hill, Senior Land Planner, LD&D at hill@ldd-inc.com or 426-9374

 

PDF version of Notification of Informational Meeting: 

 


Javanon 1

Proposed Plan

Javanon 2

Aerial Map of 12603 Rehl Road

Javanon 3

After the Neighborhood Meeting

Javanon 4

REMINDER: Traffic plans for upcoming 2024 PGA Championship

In an effort to provide residents with information surrounding the PGA Championship and how the traffic flow will change, please reference the materials below.

What: 2024 PGA Championship When: Monday, May 13 - Sunday, May 19, 2024 Where: Valhalla Golf Club, 15503 Shelbyville Road

Traffic Overview: Exciting times are ahead as Louisville gears up for the PGA Championship at Valhalla Golf Club! As your local community resource, we want to ensure residents are well-informed and prepared for any potential traffic impacts during this event.

  • Starting the week of April 29, motorists will see signage being installed along Shelbyville Road (U.S. 60) alerting residents of increased traffic. Motorists can expect a continual increase in traffic through May 12 as preparations for the tournament begin.
  • Beginning Monday, May 13, Shelbyville Road will have lane restrictions and speed limit reductions from I-265 to Eastwood Cutoff Road. These temporary lane restrictions and speed limit reductions will remain in place through Sunday, May 19.

While these changes may cause some inconvenience, rest assured the priority is your safety. We advise exploring alternate routes to avoid delays. However, if you must use Shelbyville Road, please stay vigilant for temporary signage, traffic changes, and anticipate delays. LMPD and KYTC have been working diligently to make changes in anticipation of increased traffic on Shelbyville Road.

There will be no public parking, drop-offs, or walk-ins at or around Valhalla Golf Club. Residents and guests will not be allowed to walk from their homes to the PGA Championship.

For further updates and information regarding the 2024 PGA Championship, please visit https://www.pgachampionship.com/

map PGA Traffic Alert

translation-graphic-revised-2023