601 W. Jefferson Street Louisville, KY 40202 502.574.1111 Kevin.Kramer@louisvilleky.gov
 Scott Harrington
Legislative Assistant Phone: 502-574-3456 Scott.Harrington@louisvilleky.gov
|
Click below for a .pdf version of neighborhood meeting notice:
Dear Neighbor:
We are writing to invite you to a follow-up meeting to the one held September 19, 2022 to again present neighbors with our zone change, FFDRO application, CUP and Detailed District Development Plan (DDDP) to allow a self-storage facility to be located as above.
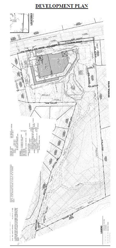
We filed a plan for review with Planning and Design Services (PDS) that was assigned case numbers, 22-ZONE-0170, 22-CUP-0400, and 22-FFO-0009. The case manager assigned to this case is, Jay Luckett. Since it has been over 90 days since the pre-application plan was filed, we are required to hold a second neighbor meeting, which is the reason for this second meeting. The plan shown at the previous neighbor meeting proposed nine, 1-story buildings containing 735 units, in addition to a 1,600 sf office. The current plan proposes 2 buildings comprised of 102,675 sf of storage area and 1,600 sf of office space. A retaining wall around the buildings is also proposed. We would like to show and explain this plan to neighbors so that we might hear what thoughts, issues and concerns you may have.
In that regard, a meeting will be held on Monday, January 9, 2023, beginning at 6:30 p.m. at the First Baptist Church, Eastwood in the Multipurpose Building located at 16122 Eastwood Cut Off Road, Louisville, Kentucky. (Park in the upper parking via the frontage road that runs in front of the church. Access the frontage road from either Eastwood Fisherville Road or Eastwood Cut Off Road. Enter the Multipurpose Building located in the rear of the parking lot through the door located on the left side of the building. Go down the stairs to the meeting room. Wheelchair access is available through the back door.)
Enclosed for your review are the following: 1. The development plan sheet 2. LOJIC site location zoning map sheet showing the location of the site 3. Detailed summary sheet of the project 4. Contact information sheet and Information on how to obtain case information online from PDS’ online customer service portal 5. PDS’ “After the Neighborhood Meeting” sheet
If you are unable to attend the meeting, or have any questions or comments, please feel free to email or call me at the number listed above.
We look forward to our opportunity to visit with you.
Sincerely,
Nick Pregliasco
|