601 W. Jefferson Street Louisville, KY 40202 502.574.1111 Kevin.Kramer@louisvilleky.gov
 Scott Harrington
Legislative Assistant Phone: 502-574-3456 Scott.Harrington@louisvilleky.gov
|
We are writing to invite you to a follow-up meeting to the one we held on March 29, 2022. At that prior meeting we showed the correct plan, but the letter sent out on March 4, 2022 was not correct.
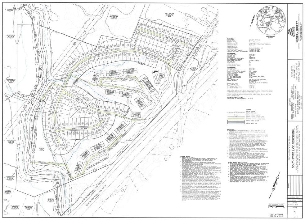
The March 4, 2022 letter mistakenly referred to a proposed R-4 density potential transfer subdivision to allow 250 single-family lots. It should have instead referred to our zone change plan to allow a 148-lot subdivision on the R-5 portion of the site and a 364-unit apartment community on the R-6 portion of the overall 85.83 +/- site. If you attended the meeting on March 29, 2022, nothing significant regarding changes will be shown at this meeting. However, if you did not attend the first meeting because of the inaccurate notice, you will want to attend this second meeting. Regardless, though, all are welcome to come.
We have filed a preliminary plan for review with the Division of Planning and Design Services (PDS) that has been assigned case manager, Julia Williams and case number 22-ZONEPA0056.
In that regard, an in-person meeting will be held on Monday, May 16, 2022, beginning at 6:00 p.m. at the Hilton Garden Inn Louisville East located at 1530 Alliant Ave., Louisville, KY 40299.
If you are unable to attend the meeting, or have any questions or comments, please feel free to contact me at the phone number/email listed above.
|