|
NOTICE* Municipal Advisory Council Meeting Wednesday, October 16, 2024 @ 6:30 PM
NEXT SCHEDULED MAC MEETING Wednesday, October 16, 2024 @ 6:30 PM Dry Creek School District Office – Community Room 8849 Cook Riolo Road Roseville, CA 95747
ON THE AGENDA
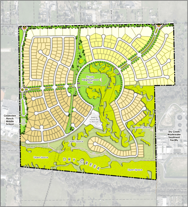
ACTION ITEM: The Ranch Subdivision
INFORMATIONAL ITEM: None
*Agendas, Minutes, Staff Reports and Legal Notices posted on this bulletin are provided as a public service and are not intended to serve as a part of, or a replacement for, any part of the legally required noticing or posting of these materials.
|
|
 The West Placer Bulletin is a monthly courtesy update about what is happening in unincorporated western Placer County, California near the City of Roseville.
For information about what is happening within the city limits of Roseville, visit https://Roseville.CA.US/DevelopmentActivity
If you have questions or comments about anything in this bulletin, please contact Supervisor Bonnie Gore at SupervisorGore@Placer.CA.Gov.
|
|
|
Updates this Month
1. October MAC Meeting Notice 2. Application Period Open for 2025-27 MAC 3. The Ranch Subdivision EIR Notice of Availability 4. Upcoming Board of Supervisors, Other Meetings 5. Construction Commencing 6. Upcoming Events 7. Public Safety Updates
|
|
Call to Serve - West Placer MAC
Established in 1978 by the Board of Supervisors, MACs serve as a forum for community concerns, focusing on topics like land use and transportation. Members are nominated by the Board member representing the District and appointed by a majority vote of the Board of Supervisors.
The 2-year term for existing MAC members expires January 2025 and new members will be seated at the February 2025 meeting.
Interested residents should read the description and requirements. Once reviewed, fill out the Placer County Committee Application and submit it to the Clerk of the Board at BoardClerk@Placer.CA.Gov.
The deadline to apply is Tuesday, December 3, 2024 at 5 p.m.
Questions? Contact District 1 Chief of Staff, Landon Wolf at LWolf@Placer.CA.Gov
The Ranch Subdivision EIR Notice of Availability
Placer County released the Final EIR for the subject project yesterday, October 8, 2024. The “Notice of Availability” can be downloaded here, and the Final EIR is available online at https://www.placer.ca.gov/8622/The-Ranch-Subdivision
The Board of Supervisors meets twice monthly at the Placer County Administration Center, "The Domes," unless otherwise noted. Residents are always welcome to attend meetings in person or watch the meetings online at Placer.CA.Gov/BOSLive.
Placer County Administrative Center "The Domes" 175 Fulweiler Avenue Auburn, CA 95603
UPCOMING MEETINGS
Tuesday, October 22, 2024 @ 9:00 AM Meeting Location: Auburn
Tuesday, November 5, 2024 @ 9:00 AM Meeting Location: Auburn
Hearing schedules are tentative until the agenda is publicly posted by the Clerk of the Board prior to a Board of Supervisors Meeting.
Click Here to View Board of Supervisors Agendas, Summaries and Videos
|
|
New Projects:
-
Sabre City Park Estates Subdivision
This project held its preconstruction meeting in late August and actual construction started early October. Located in South of PFE Road, Sabre City Park Subdivision project includes total of 24 lots single-family residential.
-
Placer Vineyards Property 1A Phase-5 Placer Creek Drive
Improvement Plans Approved early September and preconstruction meeting scheduled for October 10th.
Residents can expect construction noise during allowable work hours. Dust, erosion and sediment control best management practices are required for all projects.
For questions, please feel free to contact Engineering and Surveying Division at (530) 745-3110 or at ENG_SURV@placer.ca.gov.
Click Here to Visit the Placer County Current Construction Web Page
|
|
Events
Medication take-back event October 26th, 2024
 |
|
As Placer County prepares to host another free medication take-back event Oct. 26, remember you can also take advantage of permanent drop boxes and mail-in options that offer a safe, free way to dispose of medication year-round. Learn more |
|
|
 |
|
Placer County Sheriff's Office (PCSO) Loomis Office 6140 Horseshoe Bar Road, Suite D Loomis, CA 95650 916-652-2400 (Non-Emergency)
|
UPDATE FROM PCSO
The Placer County Sheriff’s Office joined All American Speedway in Roseville for their First Responders Night. They paused to honor several first responders for their above and beyond service, including one of our own, Deputy Richard Porter. Early on the morning of May 3rd, Deputy Porter was part of a contact team that approached a van with a suspect who refused to come out. Deputies were met with gunfire from the suspect. One of those bullets hit Deputy Porter. He remained composed as fellow deputies worked to safely get him to a secure location where he could be air lifted to the hospital. Incredibly, just a few days later, Deputy Porter was released from the hospital. Deputy Porter has remained in high spirits since the night of the shooting and is now a proud new dad!
|
We had an awesome time meeting so many people at First Responders Day at Bayside Blue Oaks on September 15th. Kids got to check out the Placer County Sheriff’s Office Tactical Response Vehicle and a patrol car. Thank you to everyone who stopped by to say hello! |
|
 |
Looking ahead, we’re excited to join Riego Creek Elementary for their First Responders Day on Friday October 18th!
 |
|
Placer County Fire Department - CAL FIRE Station 100 8350 Cook Riolo Road Roseville, CA 95747 (916) 771-0107 (Non-Emergency)
|
 |
|
Placer County District Attorney’s Office 10810 Justice Center Drive Roseville, CA 95678 |
UPDATE FROM DISTRICT ATTORNEY'S OFFICE
October is Domestic Violence Awareness Month
Relationships aren't always perfect, but there are some red-flag signs of domestic abuse that can be a predictor of future violence. Continuing these conversations is critical and a core goal of Domestic Violence Awareness Month. This month, the Placer DA’s Office will be sharing information and resources on their social media, as well as partnering with the City of Roseville on their annual billboard campaign.
If you or a loved one are experiencing these early signs of abuse, this is a sign to take action. Learn more at www.placer.ca.gov/DV
|
 |
|
California Highway Patrol - Auburn Area Office (220) 9440 Indian Hill Road Newcastle, CA 95658 (916) 633-3344 (Non-Emergency) |
UPDATE FROM CHP
Car Seat Event - October 25, 2024
 |
|
While most parents and caregivers are confident that they have correctly installed their child's car seat, almost half (46%), have been installed incorrectly.
CHP will check car seats at their area office by appointment. Learn more.
|
*
|
|
|
|
|